产品详细信息
| 模型没有 |
分享我们:
|
|||||||||
| 销售单位 | 每一个 | |||||||||
| 类别 | 电源产品及配件 太阳能 太阳能电池板配件 太阳能电池板安装 Clenergy Clenergy极点安装 |
|||||||||
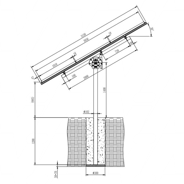
| 描述 | Ezrack post - mount 3- a KIT太阳能电池板安装系统,可安装3块尺寸高达1650x1000mm的电池板 | |||||||||
| 品牌 | ![]() |
|||||||||
| 大小 | 杆顶安装 | |||||||||
| 评论 | ||||||||||
适合安装3个60单元或1650x1000mm大小的面板 Clenergy PV-ezRack®PostMount框架是一种地面安装系统,适用于远程,住宅和商业规模的安装。 PV-ezRack®PostMount交付
高品质铝,不锈钢和镀锌钢组件的组合,使这是一个坚固可靠的系统,具有优异的耐腐蚀性。 适用于各种土壤条件 倾斜角度可调 健壮可靠 安装简便快捷
|
||||||||||
| 数据表 | ||||||||||
|
||||||||||


